Új albérlet
 5 db kép
							0 lakás
							5 db kép
							0 lakás
						PASKAL GARDEN B ÜTEM
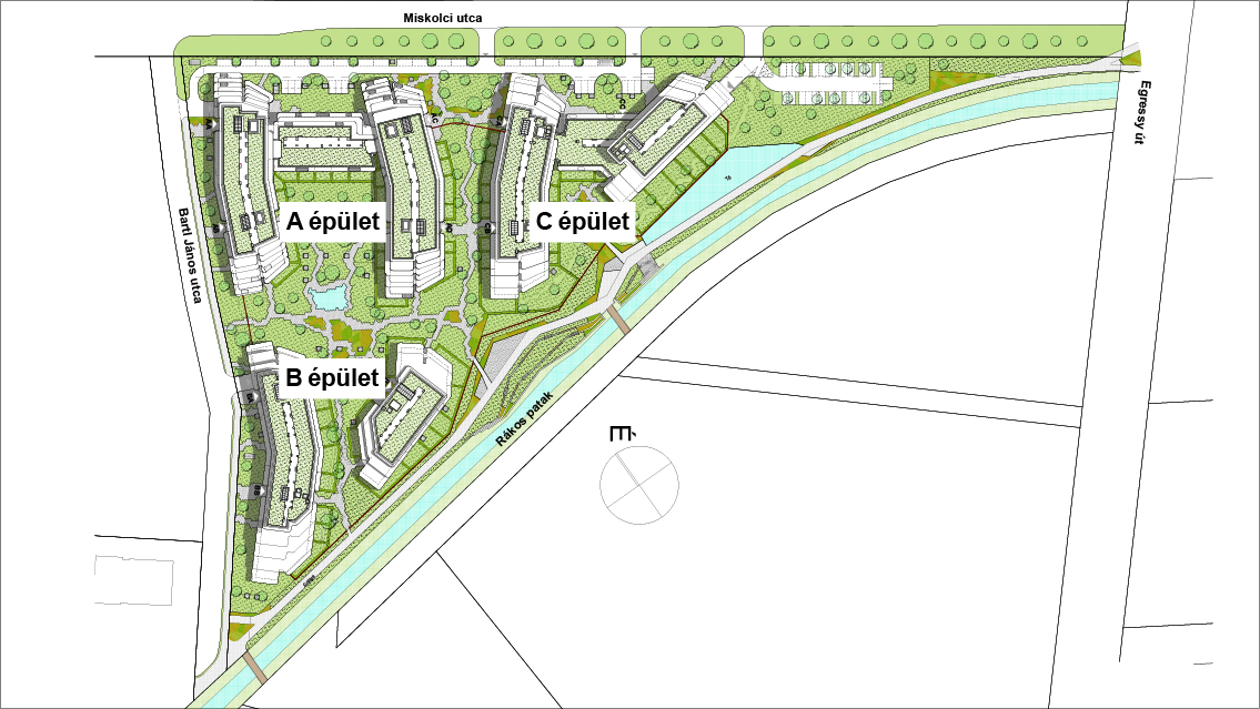
				Budapest XIV. kerület,  Bartl János utca
				
					Design
Az íves vonalvezetésű erkélyek, a lépcsőző épülettömeg és a könnyed üvegkorlátok segítik a többlakásos épület belesimulását a tömegek között kiépített ligetes park, valamint a rekultivált Rákos-patak által létrejövő békés és csendes környezetbe. Minden otthon nagyméretű nyílászáróval tekint a parkosított belső kert felé, így a külső táj része lesz a lakásnak.
Belsőépítészeti lehetőségek
Újra visszatért a retró stílus, egyedülálló látványa magával ragadja az embereket. Habár a hagyományos esztétika ismeri a szabályait az időtlen szépségnek, ha a modern belső építészet jön szóba, nincsenek kőbe vésett írások. Pont ez a szabadság teszi ennyire inspirálóvá, ösztönzővé.
Okos otthon
Egy igazán energiatudatos és fenntartható épületgépészeti rendszer megvalósíthatatlan professzionális automatizálás, szabályozás nélkül. A magas műszaki minőségű termosztátok kiemelkedő komfortot és jelentős energiamegtakarítást képesek elérni
			Az íves vonalvezetésű erkélyek, a lépcsőző épülettömeg és a könnyed üvegkorlátok segítik a többlakásos épület belesimulását a tömegek között kiépített ligetes park, valamint a rekultivált Rákos-patak által létrejövő békés és csendes környezetbe. Minden otthon nagyméretű nyílászáróval tekint a parkosított belső kert felé, így a külső táj része lesz a lakásnak.
Belsőépítészeti lehetőségek
Újra visszatért a retró stílus, egyedülálló látványa magával ragadja az embereket. Habár a hagyományos esztétika ismeri a szabályait az időtlen szépségnek, ha a modern belső építészet jön szóba, nincsenek kőbe vésett írások. Pont ez a szabadság teszi ennyire inspirálóvá, ösztönzővé.
Okos otthon
Egy igazán energiatudatos és fenntartható épületgépészeti rendszer megvalósíthatatlan professzionális automatizálás, szabályozás nélkül. A magas műszaki minőségű termosztátok kiemelkedő komfortot és jelentős energiamegtakarítást képesek elérni
 
																	 
																	 
																	