Budapest, XI. kerület Solt utca, 4 szoba, 109 m2, 499 000 Ft/hó
499 000 Ft/hó
Solt utca
Budapest, XI. kerület
Budapest, XI. kerület
4 szoba, 109 m2
Épület típusa
Lakás
Közös költség
37 000 Ft/hó
Fűtés
Cirkó
Minimum bérlési idő
Legalább 1 év
Berendezés
Részben berendezett, gépesített
Különnyíló szoba
4
Emelet
1
Kilátás
Kertre néző
Erkélyek száma
1
Min. bérlési idő
Legalább 1 év
Energiatanúsítvány
Nem adott
Tovább a lakás adataira
Ingatlan állapota
Felújított
Komfort fokozat
Duplakomfortos
Parkolási lehetőség
Telken parkoló
Épület szintjei
3
Részletek
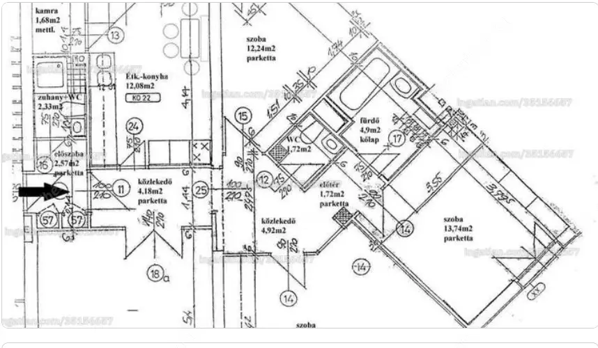
XI. kerület, Solt utcában, lakóparkban kiadó lakás.
2 emeletes társasház 1. emeletén helyezkedik el. Lift nincs.
4 külön nyíló szoba, konyha, 2 fürdő, 2 WC, tágas, 8 m2-es erkély jellemzik a lakást.
Világos, csendes.
Bútorozatlanul, viszont gépesítve várja leendő bérlőit.
Ideális akár családok részére is.
A lakáshoz tartozik egy udvari beálló, valamint egy tároló, ezek díja a bérleti díjban benn van.
Kettő havi kaució és első havi bérleti díjjal vehető birtokba.
Érdeklődni: Kálny Csaba