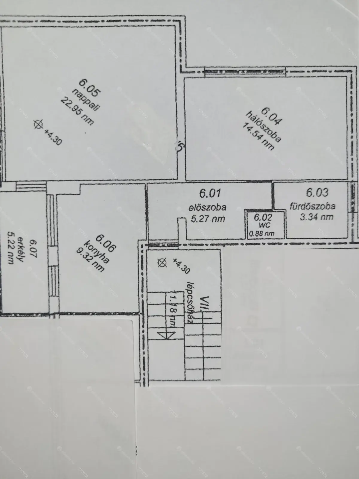
Budapest, XI. kerület Higany utca, 2 szoba, 58 m2, 240 000 Ft/hó
Budapest, XI. kerület
Lakás jellemzők: Külön WC, Tároló, Terasz, Zuhanyzó, Tetőtéri, Biztonsági ajtó, Redőny, Szúnyogháló, Műanyag ablak
Épület jellemzők: Belsőkert, Elektromos garázskapu, Fűtéskorszerűsített, Telken fedett parkoló
Felszereltség: Klíma
Részletek
Hosszú távra kiadó felújított 2 szobás, klímás, teraszos, fedett gépkocsi beállóval rendelkező világos lakás. Külön étkezős konyha, tusolós fürdőszoba, külön wc, terasz a zöld kertre néz. Közlekedése ideális, metro, buszmegállók pár percre.Pincében egy zárható saját 6 nm tároló.
Közös költség 13 ezer Ft, rezsi fogyasztás alapján.
Környék egyéb: Kelenföld vasútállomás
Közlekedés: Metro 4