Budapest, VII. kerület Király utca, 3 szoba, 61 m2, 390 000 Ft/hó
Budapest, VII. kerület
Lakás jellemzők: Külön WC, Zuhanyzó, Biztonsági ajtó, Redőny
Felszereltség: Klíma
Részletek
Belső-Erzsébetváros egyik legizgalmasabb részén, a Király utca és a Kazinczy utca találkozásánál, egy műemlék épület második emeletén kiadó, egy 61 m²-es, 3 szobás, világos, bútorozatlan lakás.
A lakás teljes felújításon esett át, így a leendő bérlő lesz az első, aki beköltözhet a frissen elkészült otthonba.
A lakás különlegessége:
A zöld térre néző ablakok miatt a lakás rendkívül világos, ugyanakkor teljesen privát – a környező épületekből senki nem lát be, így a belvároshoz képest ritka, zavartalan nyugalmat kínál. Elhelyezkedése kivételes: a belváros szívében, mégis élhető környezetben. A Deák tér gyalog 4 percre található.
Kinek ajánljuk:
Ideális pároknak, home office-ban dolgozóknak, családnak, diákoknak, de akár irodának is.
Főbb jellemzők:
- Épület: közepes állapotú műemlék épület, folyamatosan karbantartott
- Épületen belüli elhelyezkedés: 2. emelet, lift nincs
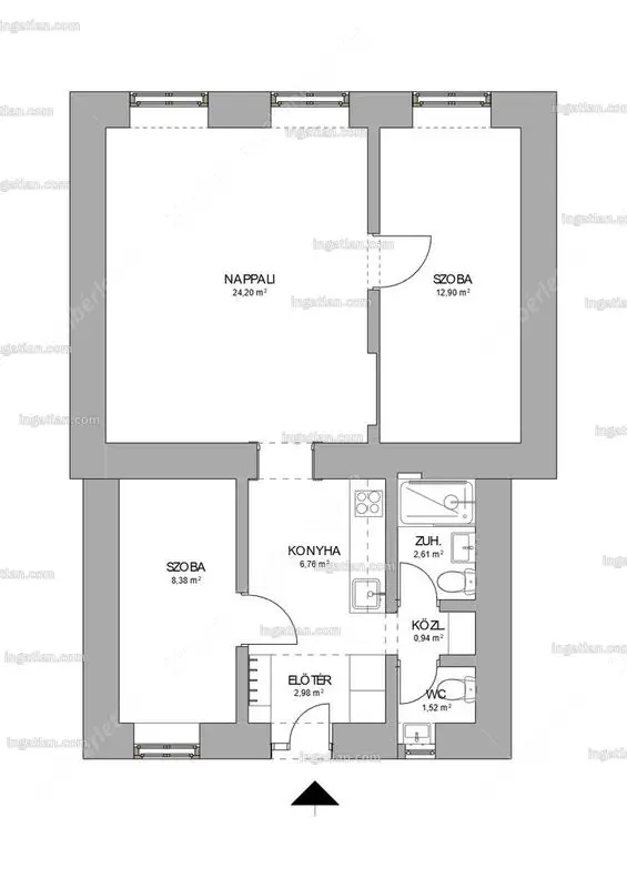
- Helyiségek: 61 m²-es alapterület: 3 szoba, különálló új gépesített konyha,
zuhanyzós fürdőszoba wc -vel, + külön vendég wc
- Komfort: klimatizált, új nyílászárókkal és elektromos redőnyökkel felszerelt
- Állapot: frissen felújított, bútorozatlan
- Fűtés: új egyedi gázkazán (saját mérőórák, alacsony fenntartás, közös költség: 20.740.- Ft/hó)
- Kisállat: 1 jól nevelt, kistestű háziállat hozható
- Egyéb: parkra néző ablakok, hangulatos kilátás