Budapest, VI. kerület Teréz körút, 2 szoba + 1 félszoba, 70 m2, 340 000 Ft/hó
Budapest, VI. kerület
Lakás jellemzők: Fürdőkád, Külön WC, Mosogatógép
Részletek
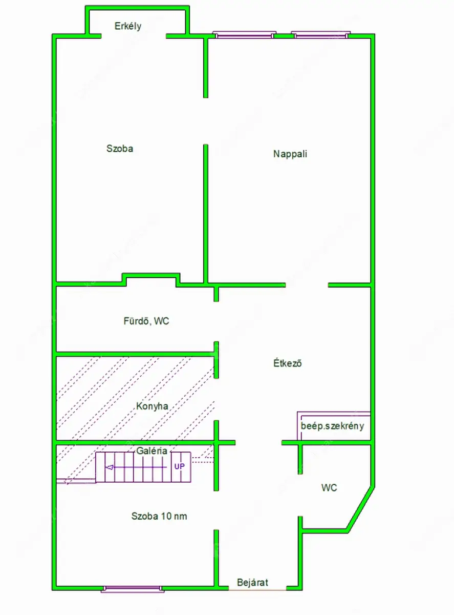
VI. Teréz körúton a Nyugati és az Oktogon között rendezett,jó állapotú liftes ház II.emeletén 70 nm-es 2,5 szobás, dupla komfortos lakás kiadó.
Az otthon melegéről kondenzációs kazán gondoskodik.
Két szobája a csendesebb Jókai utcára néz, az egyikből léphetünk ki a kellemes ERKÉLYRE.
A kisebb szoba a ház belső udvarára néz, itt galéria növeli az életteret.
Modern újszerű konyha van, gépesített(mosogatógéppel), étkező külön.
Elegáns fürdője kádas, WC-vel, mosógéppel,de külön is van WC kézmosóval.
Az ingatlan remek helyen van, kiváló közlekedés jellemzi a 4,6-os villamos a ház előtt jár, mindenhol üzletek, éttermek a színházak is a közelben!
Központi elhelyezkedése miatt, ideális irodának és lakásnak is egyaránt.
Költözhető közjegyzői kiköltözési nyilatkozatot követően, hosszútávra.
Közös klts. 23500 Ft.vízfogyasztással.
Bérleti díj 340e Ft.+ 2 havi kaució.
Érd +36 70 384 5302
Környék: Blaha Lujza tér, Nyugati tér, Oktogon, Városliget
Közlekedés: 4-es 6-os villamos, Metro 3 kék