Budapest, VI. kerület Ó utca, 3 szoba, 98 m2, 799 000 Ft/hó
Budapest, VI. kerület
Lakás jellemzők: Külön WC, Nagy belmagasság, Zuhanyzó, Biztonsági ajtó, Redőny
Felszereltség: Klíma, Riasztó
Részletek
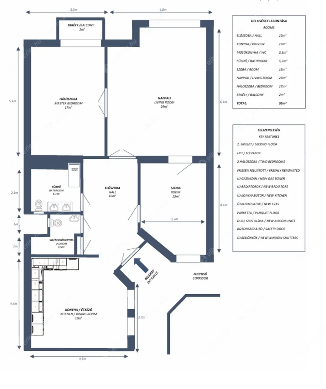
Budapest VI. kerületében az Ó utcában kínálunk kiadásra egy FELÚJÍTOTT, 98 nm-es, 3 szobás, ERKÉLYES lakást egy rendezett liftes társasház második emeletén. A lakás teljes körűen fel lett újítva, új villany- és vízhálózat.
Az ingatlan BÚTOROZOTT és GÉPESÍTETT.
ELOSZTÁS
A felújított liftből kilépve ez az első lakás, így nem kell a körfolyosóra kimenni.
A lakásba egy dupla záras, biztonsági ajtón léphetünk be, ahol a kaputelefon és a riasztórendszer vezérlőpanelje található. Az előszobából nyílik az üveg tolóajtóval leválasztott konyha-étkező, a takarító-/tárolószekrény, a vendég WC/mosókonyha, a fürdőszoba, a nappali, valamint a kisebb hálószoba. A tágas konyha-étkező az előszoba mellett található, ami tökéletes nagyobb összejövetelekhez.
A konyha üveg tolóajtóval van leválasztva a lakás többi részétől, és modern konyhabútorokkal, valamint kiváló minőségű beépített gépekkel (no-frost hűtőszekrény, mosogatógép, mikrohullámú sütő, sütő és páraelszívó) van felszerelve.
Az udvarra néző ablakok miatt a helyiség világos, és a többféle világítási lehetőség is növeli a hangulatot.
A nappali és a nagyobb hálószoba délkeleti fekvésűek, így egész nap élvezheti a kellemes napsütést.
Mindkét szobában gyönyörűen felújított, eredeti parketta van, és Wi-Fi-vel vezérelhető Gree klímaberendezések találhatók.
A kisebb hálószoba szintén parkettás, és a csendes belső udvarra néz, így egész nap világos marad.
Az utcára néző hőszigetelt ablakok elektromos redőnyökkel vannak felszerelve.
Két külön WC, mosógéppel és szárítógéppel egy külön mosókonyhában.
A fürdőszobában dupla mosdó, törölközőszárító és egyedi üveg zuhanykabin található Hansgrohe zuhanyszerelvényekkel.
KÖLTSÉGEK
Közös költség: 35.000 Ft
A H-tarifa mérő segít csökkenteni a fűtési és hűtési villamosenergia-költségeket
Fűtés: Viessmann melegvíz tárolós kazán
ELHELYEZKEDéS
Kávézók, boltok, éttermek, fitneszterem, hotelek és több parkolóház is 100 méteren belül elérhető.
A tömegközlekedés kiváló, így könnyen közlekedhet a városban.
EGYÉB
ERKÉLYES
RIASZTÓVAL FELSZERELT
ELEKTROMOS REDŐNY
Lift van!
2 havi kaucióval és az aktuális bérleti díjjal AZONNAL költözhető, minimum 1 éves tartamra!
KERESŐ ÜGYFELEINK SZÁMÁRA SZOLGÁLTATÁSUNK DÍJMENTES!
Közlekedés: Metro 3 kék