Budapest, VI. kerület Ó utca , 5 szoba, 162 m2, 480 000 Ft/hó
Budapest, VI. kerület
Részletek
Szeretne egy nagy lakást bérelni, vagy két lakást egymás mellett?
Kiváló helyen, CSALÁD BARÁT, NAGY lakás
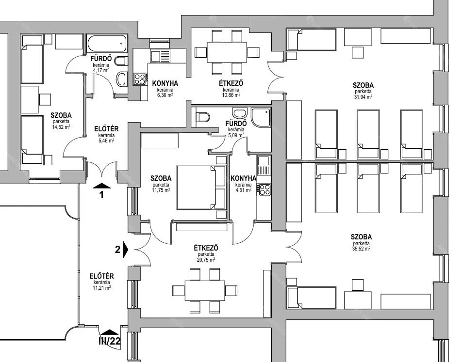
Budapesten a VII. kerületben, az Arany János utcai metrómegálló közelében, az Ó utcában, egy világos, jó elosztású, 3. emeleti, 162 m²-es, összesen 5 szobás lakás, de két külön, önálló lakásként is kiadó.
Ideális lehet különböző méretű CSALÁDOKNAK, EGYETEMISTÁKNAK, vagy akár CÉGEKNEK IS!
Az ingatlan elrendezésének köszönhetően akár két lakásként is használható.
További lakások elérhetőek!
Közös előtér 11 m2
A házban nincs lift, a felsőbb szintek viszont csendesebbek, és nyugodtabb lakást biztosít.
5 külön nyíló szoba, nagy belmagasság.
A lakás felszereltsége, mosógép, mikró, mosógép, elektromos főzőlap.
Mindkét lakásban tusolós fürdő, és Wc egyben.
1 LAKÁS:
- előtér
- konyha
- étkező
- fürdő
- szoba 32m2
- szoba 14,5 m2
Összesen: 73 m2
2 LAKÁS
- előtér
- fürdő
-konyha
- szoba 11 m2
- szoba 11,75
- szoba 35,5
Összesen: 78 m2
Kiváló közlekedésű, könnyen megközelíthető lakás, néhány perc sétára található az Arany János utcai metrómegálló, így a város bármely pontja gyorsan és egyszerűen elérhető.
A BÉRLÉS jellemzői:
- minimum 1 éves bérleti szerződés
- dohányzás nem megengedett
- beköltözhető 2 havi kaució + 1 havi bérleti díj megfizetése után
- közjegyzői nyilatkozat aláírása
Amennyiben a hirdetés felkeltette az érdeklődését, keressen bizalommal!
Kereső ügyfeleink számára szolgáltatásaink díjmentesek!