Budapest, V. kerület József nádor tér, 2 szoba + 1 félszoba, 59 m2, 400 000 Ft/hó
Budapest, V. kerület
Lakás jellemzők: Gardróbszoba, Külön WC, Mosogatógép, Zuhanyzó
Épület jellemzők: Közelben parkolóház
Felszereltség: Klíma
Részletek
József nádor térre néző, világos 59 m²-es lakás hosszú távra kiadó!
A képek között ötletek találhatók a kényelmes berendezésre - lakásból így lesz otthon !
Kiadó egy igazán különleges elhelyezkedésű, 59 m²-es, bútorozatlan lakás Budapest egyik legszebb terére, a József nádor térre néző ablakokkal. Ha fontos a presztízs, a kényelem és a nyugodt belvárosi környezet, akkor ez az ingatlan kivételes lehetőség.
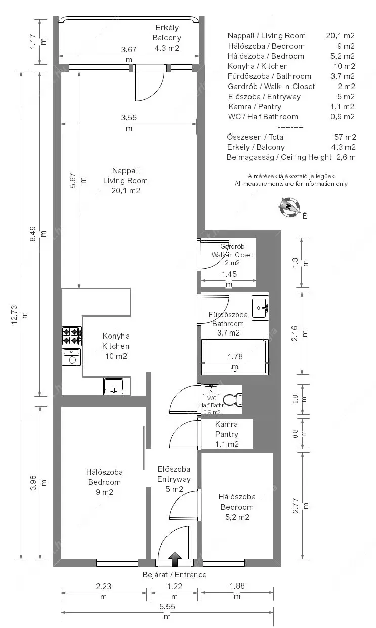
A lakás elrendezése ideális, jól elkülönülő életterekkel:
Tágas amerikai konyhás nappali (30 m²) erkéllyel
2 hálószoba
Gardrób
Zuhanyzós fürdőszoba
Külön WC
Háztartási helyiség
Előszoba
A lakás elosztása kifejezetten praktikus: a szobák különnyílóak a hálószoba mellett kialakításra került kis szoba ideális dolgozónak, vendégszobának vagy gyerekszobának is.
Miért egyedi ez a lakás?
Ritka, hogy egy lakás közvetlenül a József nádor térre néz – elegáns, csendes, mégis abszolút belvárosi hangulattal.
A lakás frissen felújított, világos, barátságos terekkel.
A gépesített konyha nagy előny azoknak, akik szeretnek főzni.
A praktikus tárolási lehetőségek (gardrób, kamra) nagyon kényelmessé teszik a mindennapokat.
A ház rendezett, kulturált lakóközösséggel.
ALACSONY rezsi: a közös költség tartalmazza a fűtés és a vízhasználat díját.
Bérlési feltételek:
Hosszú távra (minimum 1 év)
Bútorozatlanul kiadó
Dohányzás, kisállattartás nem engedélyezett.
Közjegyzői nyilatkozattétel szükséges.
Kiváló infrastruktúra: metró, buszok, villamosok, éttermek, Duna part, bevásárlási lehetőségek pár perces sétára.
A lakás kivételes lokációja és megújult minősége különösen vonzóvá teszi, hiszen egy igazán ritka, prémium belvárosi életérzés vár benne.
Megtekintés rugalmasan lehetséges – várlak szeretettel!
Környék: Deák tér, Dunához közel, Nagykörúton belül, Váci utca, Bazilika
Közlekedés: 47-es 49-es villamos, Kisföldalatti, Metro 3 kék, Metro 2 piros