Budapest, III. kerület Nánási út, 2 szoba, 47 m2, 260 000 Ft/hó
Budapest, III. kerület
Részletek
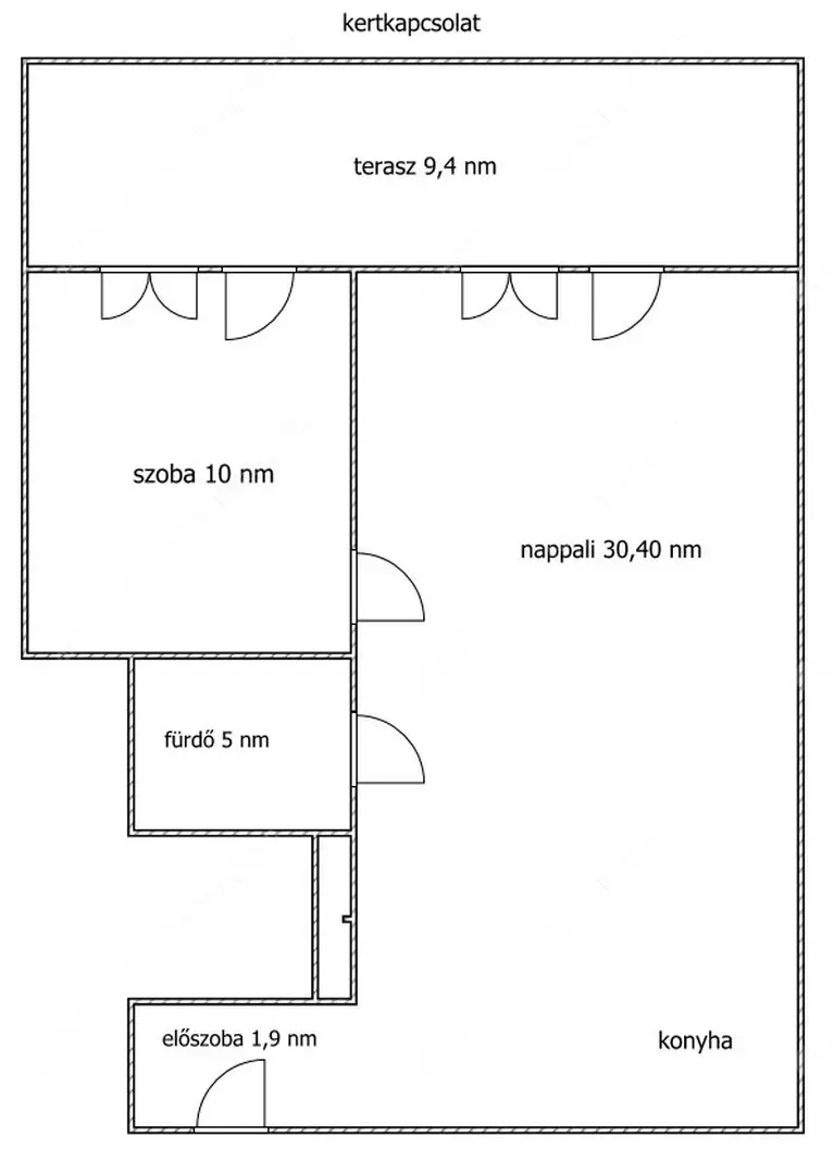
Kiadó a III. Kerületben a Nánási úton a RÓMAI PARTON egy ÚJSZERŰ HÁZBAN egy 2 szobás,47 nm-es,SAJÁT KERTKAPCSOLATTAL RENDELKEZŐ,BÚTOROZATLAN,GÉPESÍTETT,KLÍMÁS lakás.
Az ingatlan ablakai KERTRE NÉZNEK,FEKVÉSE MIATT A KERT NAPOS,CSENDES!
Elosztása:Amerikai konyhás nappaliból nyíló fürdőszoba,hálószoba,mindkét szobából nyíló terasz(9 nm-es).
Konyhában mosogatógép,hűtő,sütő,főzőlap,elszívó található,mosógépet hozni kell!
A LAKÁSHOZ TARTOZIK EGY MÉLYGARÁZS (48700/HÓ)VAGY FELSZÍNI PARKOLÓ(25800)VALAMELYIK BÉRLÉSE KÖTELEZŐ,ÉS EGY TÁROLÓ IS(25000/HÓ)BÉRLÉSE OPCIONÁLIS!
A LAKÓPARK KÜLTÉRI MEDENCÉJÉT 6 HÓNAPIG ÉLVEZHETIK AZ ITT LAKÓK!
Fűtése gázcirkóval történik,közös költsége:34100/hó
Élvezze a római part kínálta lehetőségeket,ideális választás egy gyermekes családnak,vagy párnak!
Kisállat nem jöhet
AZONNAL KÖLTÖZHETŐ 1 HAVI LAKBÉR+2 HAVI KAUCIÓVAL MIN 1 ÉVRE!