Budapest, II. kerület Lotz Károly utca, 4 szoba, 150 m2, 1 089 000 Ft/hó
Budapest, II. kerület
Lakás jellemzők: Biciklitároló, Fürdőkád, Gardróbszoba, Kertkapcsolat, Külön WC, Mosogatógép, Mosókonyha, Nagy belmagasság, Tároló, Terasz, Zárható szobaajtó, Zuhanyzó, Biztonsági ajtó, Redőny, Hő- és fényvédős faablak
Épület jellemzők: Felújított épület, Felújított homlokzat
Felszereltség: 2 fürdő, Fürdő ablakkal, Klíma, Nagy terasz, Riasztó
Részletek
INGATLAN HELYSZÍNE:
Budán, a II. kerületi Pasaréten, csendes mellékutcában helyezkedik el az ingatlan. Pár perc sétával érhető el a Szilágyi Erzsébet fasor, vagy a Pasaréti út, ahol több busz- és villamos megállók találhatók. Szintén pár perc séta a Budagyöngye Bevásárló központ, ahol több üzlet, bank, szolgáltatás is megtalálható. Autóval gyorsan elérhető a belváros, de a várost környező, pihenésre, kirándulásra alkalmas rész is. A közelben kimondottan nívós iskolák és óvodák találhatóak (idegen nyelvűek is). A természet kedvelői a közelben lévő Budai hegyekben (pl. János hegy) kikapcsolódásra lelhetnek.
A HÁZ JELLEMZŐ:
A 150 m2-es, 2 szintes Bauhaus stílusban épült ház többszöri felújításon esett át az elmúlt években (legutóbb 2025-ben).
A kapun belépve kis előkertbe jutunk, majd a házba belépve az előtér, az art deco lépcsőház fogad minket. Balra a nagy, reprezentatív nappali – étkező – konyha egybefüggő tere fogad minket. Az alsó szinten még egy szoba, fürdőszoba és mellékhelység is megtalálható. Az emeleten 2 hálószoba, 1 fürdőszoba és egy háztartási helység biztosít elkülönült, intim teret. A földszinten a konyhából egy kisebb, az emeleten az egyik szobából egy nagy teraszra léphetünk ki.
A nappali-étkezőben található art deco bútorgarnitúra a leendő bérlő rendelkezésére áll.
A ház száraz pincéjének egy részét a bérlők igény szerint tárolásra használhatják.
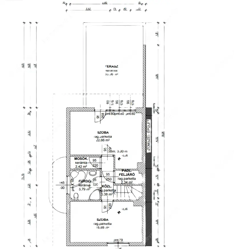
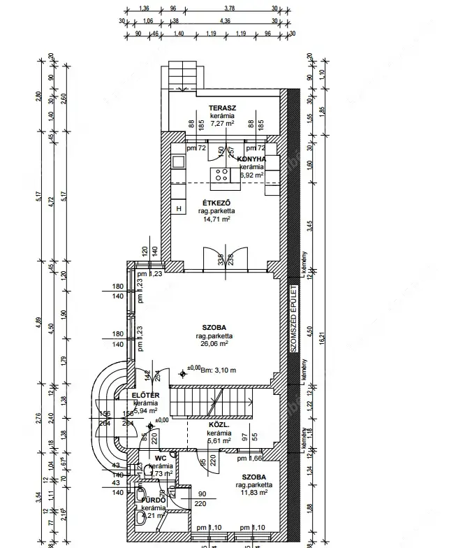
MÉRETEK:
Telek mérete: 500 m2
Ház teljes mérete: 150 m2
Földszint:
Nappali: 26 m2, Étkező + konyha: 15 m2, Szoba: 12 m2, Fürdő: 5 m2, Közlekedő: 12 m2, Terasz: 8 m2
Emelet:
Két Szoba: (19 m2, 23 m2), Fürdőszoba: 6 m2, Háztartási helység: 3 m3, Terasz: 34 m2
MŰSZAKI FELSZERELTSÉG:
A ház központi fűtéssel és radiátoros hőleadással rendelkezik (a pincében van a nagy teljesítményű Viessmann kombi kazán, mely a melegvizet is szolgáltatja).
A szobákban split klímák (Mitsubishi, Daikin) biztosítják a kellemes hőmérsékletet.
A nappaliban hangulatos elektromos kandalló és a kényelmes ülőgarnitúra nyújt lehetőséget a pihenésre.
Video kaputelefon, riasztó rendszer, széf gondoskodik a fokozott biztonságról. A háztartási helyiségben mosógép és szárítógép áll a bérlők rendelkezésére. A konyhában tűzhely, sütő, mikrohullámú sütő, mosogatógép segíti a munkánkat.
KÖLTSÉGEK:
Minden fogyasztás (gáz, áram, víz-csatorna) mérőórával követhető nyomon (a költségek a használattól függenek). Fix költségek: internet, sat tv, szemétdíj.
TÁROLÓ:
A száraz pincében található egyik helyiség tárolóként használható.
PARKOLÁS:
Az udvarban 2 autó részére van beállási lehetőség, az utcai parkolás fizetős. A kapu távirányítóval és számkóddal is nyitható.
ÁR: 2800 EUR/hó + Rezsi
Hívjon bizalommal!!