Budapest, I. kerület Lisznyai utca, 2 szoba, 56 m2, 279 000 Ft/hó
Budapest, I. kerület
Részletek
Kiadó panorámás lakás Budapest I. kerületében – Várra néző kilátással
Cím: Lisznyai utca 15., I. kerület
Bérleti díj: 279 900 Ft / hó
Kaució: 2 havi
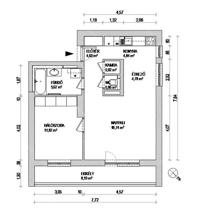
Lakás jellemzői:
Alapterület: 56 m²
Szobák: 2
Emelet: 1. emelet (4 szintes épületben, lift van)
Állapot: felújított / jó állapotú
Belmagasság: 3 m alatt
Tároló: ~1,5 m² pince
Erkély: 8 m²
Kilátás: panorámás, Budai Várra
Felszereltség:
Részben bútorozott
Gépesített konyha
Beépített szekrények
Mosógép
Új fürdőszobaszekrény
Légkondicionáló
Új, 3 rétegű nyílászárók
Hangszigetelt álmennyezet
Költségek:
Közös költség: 35 000 Ft / hó (takarítás, lift, biztosítás, kertgondozás)
Fűtés: házközponti, egyedi méréssel
Parkolás:
Önálló, zárt udvari garázs (20 m²) bérelhető: 50 000 Ft / hó
Fontos feltételek:
Kisállat nem hozható
Dohányzás nem megengedett
Elhelyezkedés:
Csendes, kiváló környék a Budai Vár közelében, jó közlekedéssel és infrastruktúrával.
Érdeklődés:
Hívjon és tekintse meg személyesen!