Budakeszi Virágvölgy utca, 4 szoba + 1 félszoba, 280 m2, 850 000 Ft/hó
Budakeszi
Lakás jellemzők: Kertkapcsolat
Részletek
Erdővel határos, csend és nyugalom szigete Budakeszin akár 2 generáció részére!
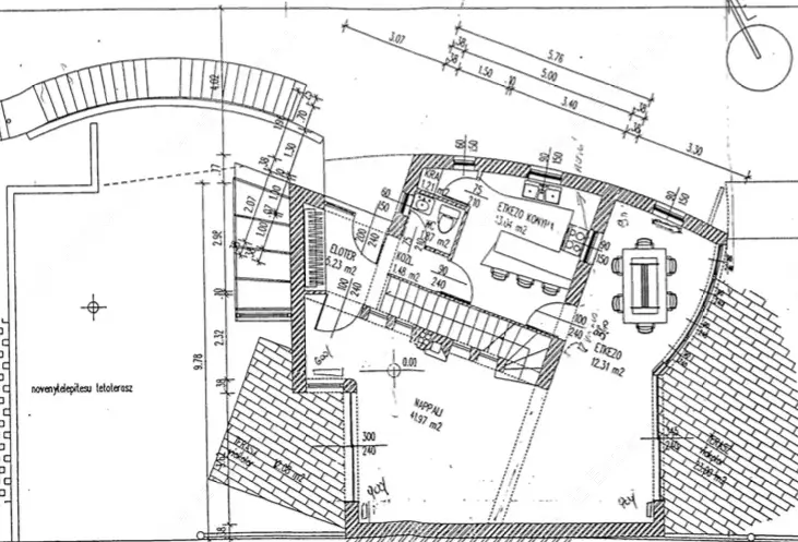
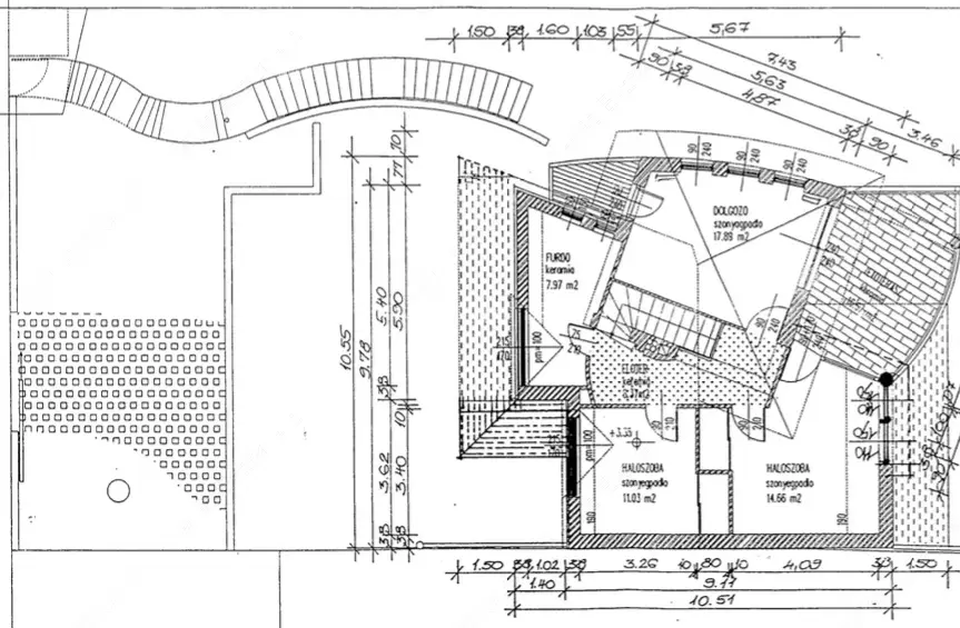
Budakeszi Virágvölgy városrészén, egy 400 nm-es telekkel rendelkező, kiváló állapotú, szigetelt, 280 nm-es, 3 szintes, triplakomfortos, örökpanorámás, teraszokkal rendelkező, külön garázsos családi ház várja új lakóját.
A panorámás lakóházat Budakeszi egyik legszebb, legértékesebb zöldövezeti területén, egy csendes, nyugodt, magával ragadó környezetben találjuk, közvetlenül az erdő mellett, mégis a városközponthoz közel.
Az ingatlan 2000-ben épült, a tulajdonosok nagy figyelmet fordítottak a külső-belső kialakításra, valamint a folyamatos karbantartásra.
A ház fűtés és melegvíz-ellátását gáz cirkó kazán biztosítja, illetve a téli estéket a nappaliban található kandallóval tehetjük meghittebbé.
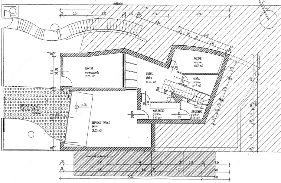
Az épület legalsó szintje külön lakótérként funkcionál, ami külön bejárattal is megközelíthető, így tökéletes választás lehet 2 generáció számára, vagy akár azoknak, akik a vállalkozásukat otthonról, de a családi élettértől mégis elszeparáltan szeretnék üzemeltetni.
Az ingatlan egy hangulatos, teljesen intim hátsó kertrésszel, illetve az alsó szint fölötti zöld terasszal rendelkezik. Tartozik hozzá 1 személyautó részére garázs, illetve egy felszíni beállási lehetőség is.
- 200 nm-es (nagyobb)lakótér:
- 2 szintes
- amerikai konyhás nappali +étkező
- előszoba
- 1 hátsó kertkapcsolatos terasz
- 1 utca felé néző zöld terasz
- 1 külön toalett
- 3 szoba
- 2 erkély
- 1 fürdőszoba +wc
- 60 nm-es (kisebb)lakótér:
- nappali+ 1 háló
- konyha
- fürdő+wc
- dolgozó/ étkezőrész
- infraszauna
- külön garázs /utcafronti/ + 1 kocsibeálló
- 10 cm dryvit hőszigetelés
Az ingatlan megközelítése jó, a település fő közlekedési útvonalának közelében található.
Közösségi közlekedéssel Budapest Széll Kálmán térről 25-30 perc alatt elérhető a 22-es busz családdal és a 922-es éjszakai járattal, valamint Kelenföld végállomású gyors járatokkal.
Infrastrukturális ellátottsága kiváló: a háztól 10 percre bölcsőde, óvoda, általános iskola és gimnázium is elérhető valamint pár perc sétányira Budakeszi városközpontja - ahol üzletek, posta, gyógyszertár, háziorvosi rendelők, cukrászdák, szépségszalonok, éttermek és bankok gazdag választéka található.
Kirándulók, természetkedvelők is előnyben: 15-20 perc sétaútra található a Vadaspark, Szépjuhászné gyermekvasút, valamint a Normafa és a Jánoshegy is bő egy órás sétányira található.