Budapest, XIII. kerület Röppentyű utca, 3 szoba, 74 m2, 413 000 Ft/hó
Budapest, XIII. kerület
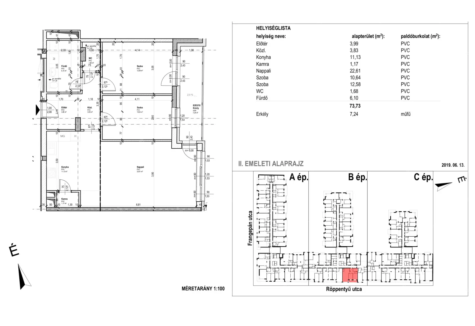
Részletek
13. kerület modern lakóparkjában, a Röppentyű utcában kínálunk bérlésre egy 2. emeleti, nappali + 2 hálószobás, kiváló állapotú lakást.
74 nm alapterületen felül, 7 nm-es erkély gondoskodik a kényelemről, ami a reggeli kávézás és esti kikapcsolódás nagyszerű helyszíne lehet.
Az ingatlan kialakítása átgondolt, terei világosak és harmonikusak, így valódi nyugalmat és kényelmet biztosít a mindennapokban.
A lakás bútorozott és gépesített. A modern konyha sütővel, főzőlappal, hűtővel, szagelszívóval és mosogatógéppel felszerelt, valamint mosógép és klímaberendezés is található a lakásban.
Az ingatlan minimum 1 évre bérelhető, közjegyző által hitelesített bérleti szerződéssel.
A bérlés feltétele 2,5 havi kaució és munkáltatói jövedelemigazolás bemutatása.
Kisállattal történő költözés esetén 3 havi kaució szükséges.
Az épület mélygarázsában különböző méretű parkolóhelyek bérelhetők havi 30 000 - 40 000 forintos bérleti díjért, emellett zárható tárolóhelyiség is igénybe vehető 2–5 négyzetméteres méretben, melynek havi díja 15 000 - 30 000 forint.
A lakás a képeken látható, kifogástalan állapotban, berendezve és teljesen gépesítve kerül átadásra.
A Divinus Lakópark letisztult, rendezett környezetet kínál, ahol a városi élet kényelme és a nyugodt lakhatás tökéletes egyensúlyban van. A környék infrastruktúrája kiváló, a közelben megtalálhatók üzletek, bevásárlóközpontok, éttermek, kávézók, valamint a tömegközlekedési kapcsolatok is gyors és kényelmes elérést biztosítanak a város bármely pontja felé. A zöldfelületek és sétára alkalmas környezet tovább növelik az itt élők komfortérzetét, ezért az ingatlan ideális választás pároknak, családoknak, illetve azok számára, akik igényes, mégis nyugodt otthont keresnek.