Budapest, VI. kerület Liszt Ferenc tér, 2 szoba, 55 m2, 399 000 Ft/hó
Budapest, VI. kerület
Lakás jellemzők: Fürdőkád, Nagy belmagasság, Műanyag ablak, Privát fürdőszoba
Felszereltség: Klíma
Részletek
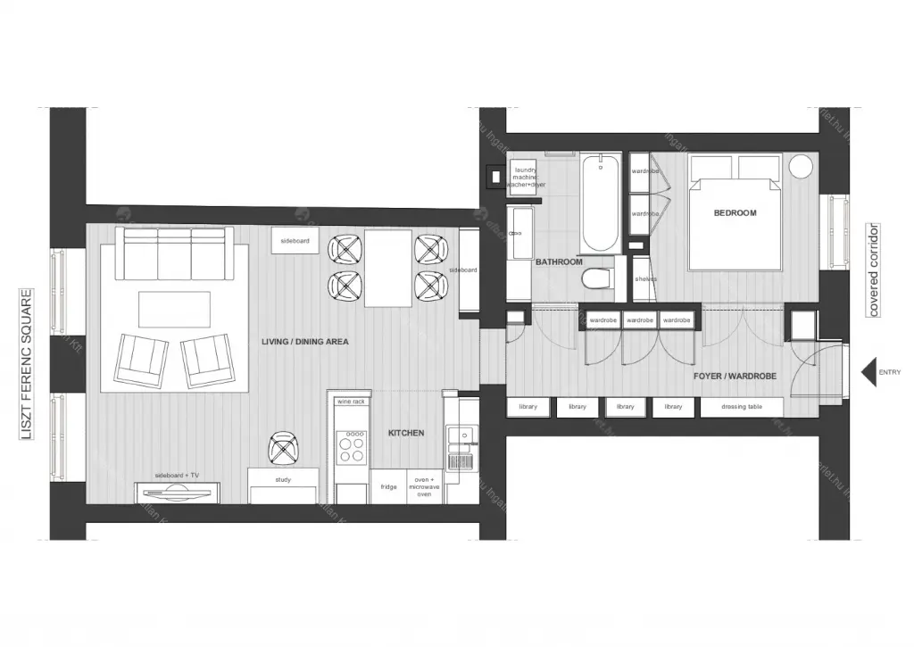
Az Andrássy útról nyíló Liszt Ferenc téren kiadó TELJESEN FELÚJÍTOTT, praktikus elrendezésű két szobás lakás,
mely ablakai erre a parkos, kávézókkal szegélyezett hangulatos térre néznek,
- Rendezett, szép, klasszikus, belső kerttel rendelkező társasházban
- Autóforgalom nincs előtte - sétálóutca - illetve az ablakok hangszigeteltek, így a lakás kivételesen CSENDES
- KLIMATIZÁLT
- Tágas amerikai konyhás nappali étkezővel
- Gépesített konyha új berendezésekkel - sütő, főzőlap, hűtőszekrény, mikrohullámú sütő
- Hálószoba franciaággyal
- Kádas fürdőszoba MOSÓ-és SZÁRÍTÓGÉP
- Sok beépített polc és gardróbszekrény
- Alacsony fenntartási költségek
A környéken az INFRASTRUKTÚRA KIVÁLÓ - bevásárlási-, kikapcsolódási- és kulturális lehetőségek nagy számban elérhetőek a környéken,
közlekedés tekintetében a lakástól pár percre M1 kisföldalatti megállója, 4 6 villamos, számos buszjárat elérhető!
Környék: Andrássy út, Oktogon
Közlekedés: 4-es 6-os villamos, Kisföldalatti