Gyömrő Nefelejcs utca, 1 szoba, 50 m2, 260 000 Ft/hó
Gyömrő
Lakás jellemzők: Zuhanyzó, Redőny
Részletek
Gyömrőn felújított családi ház azonnal költözhetően KIADÓ!
Budapest mellett Gyömrő csendes, nyugodt részén, felújított ház várja, minimum egy éves távra költözni vágyó felnőtt bérlőit. Az ingatlan azonnal költözhető, redőnnyel és szúnyoghálóval felszerelt, alapvetően bútorozatlan, de igény szerint megbeszélhető a berendezés.
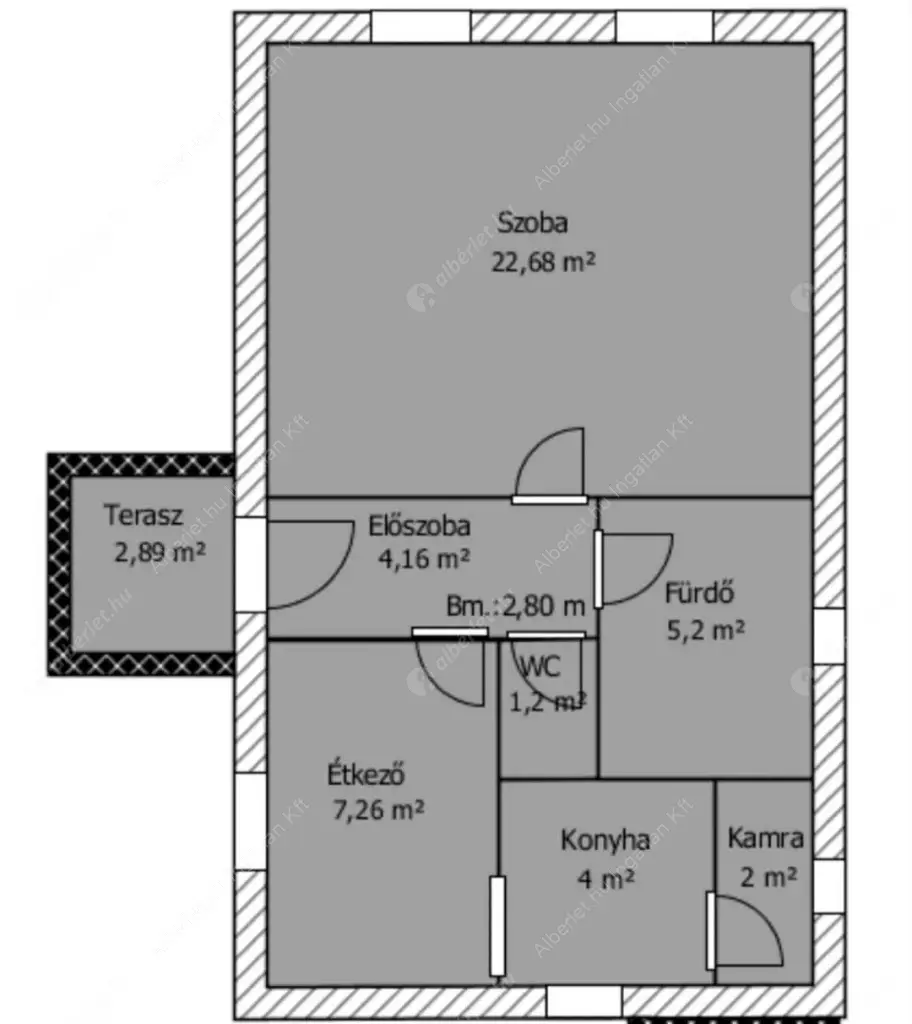
Elrendezés:
• 1 tágas szoba
• Konyha
• Étkező
• Kamra
• Zuhanyzós fürdőszoba
• Külön WC
Fűtés / meleg víz: gázkazán / villanybojler
A ház Energia tanúsítványa: JJ
Kinek ideális?
Csendes életvitelt folytató, udvart szerető, magukra és környezetükre igényes bérlőknek.
Minimum bérleti idő: 1 év
Háziállat nem hozható, a dohányzás a házban nem megengedett, csak az udvaron.