Budapest, XVIII. kerület Gerely utca, 2 szoba, 60 m2, 240 000 Ft/hó
Budapest, XVIII. kerület
Lakás jellemzők: Biciklitároló, Kamra, Tároló, Zuhanyzó, Redőny, Szúnyogháló, Hő- és fényvédős faablak, Privát fürdőszoba
Felszereltség: Tárolóépület
Részletek
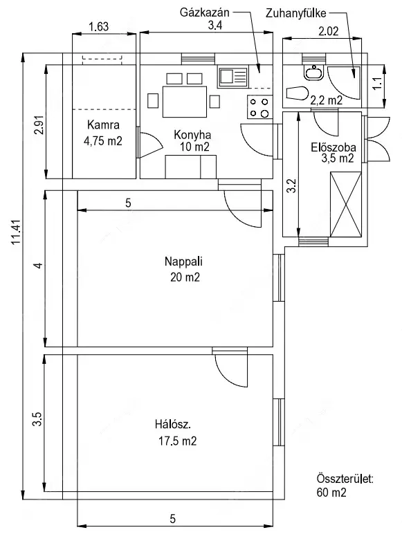
Budapest 18. Kerületében, jó tömegközlekedéssel (busszal 15 perc a Köki), hosszútávra kiadó - párok részére - 2 lakásos családi házban egy 60 nm-es, felújított, 2 szobás bútorozatlan lakás. A konyha bútorozott és gáztűzhellyel van felszerelve.
A fürdőszoba és a WC egy helyiségben van. Ez zuhanyfülkével van ellátva. A lakáshoz tartozik kamra is. A fűtés és melegvíz gázkazánnal van megoldva. Kisállat nem elfogadott.
Kertrész tartozik a lakáshoz aminek a gondozása a bérlő feladata. Alapvetően fűnyírás, de akinek van affinitása akár zöldséges, virágoskertet is kialakíthat.
Havi 240000,-Ft és a teljes rezsi
Átalánnyal a becsült havi gázköltség 20000-Ft körüli lehet.
Villany, víz, csatornadíj is egyedi mérés szerint fizetendő.
Közjegyzői okirat és 2 havi kaució feltétel. Parkolás ingyenes a ház előtt.
Igény estén fedett kocsibeálló az udvaron, 20000 Ft/ hó
Környék egyéb: Gerely utcai Sportpálya, Spar, Dohánybolt, Ász Pékség, Tonett Étterem, ÖMV és Spar Expessz
Közlekedés egyéb: 15 percre a KÖKI-től (busszal)