Budapest, XIII. kerület Újpesti rakpart, 3 szoba, 90 m2, 600 000 Ft/hó
Budapest, XIII. kerület
Részletek
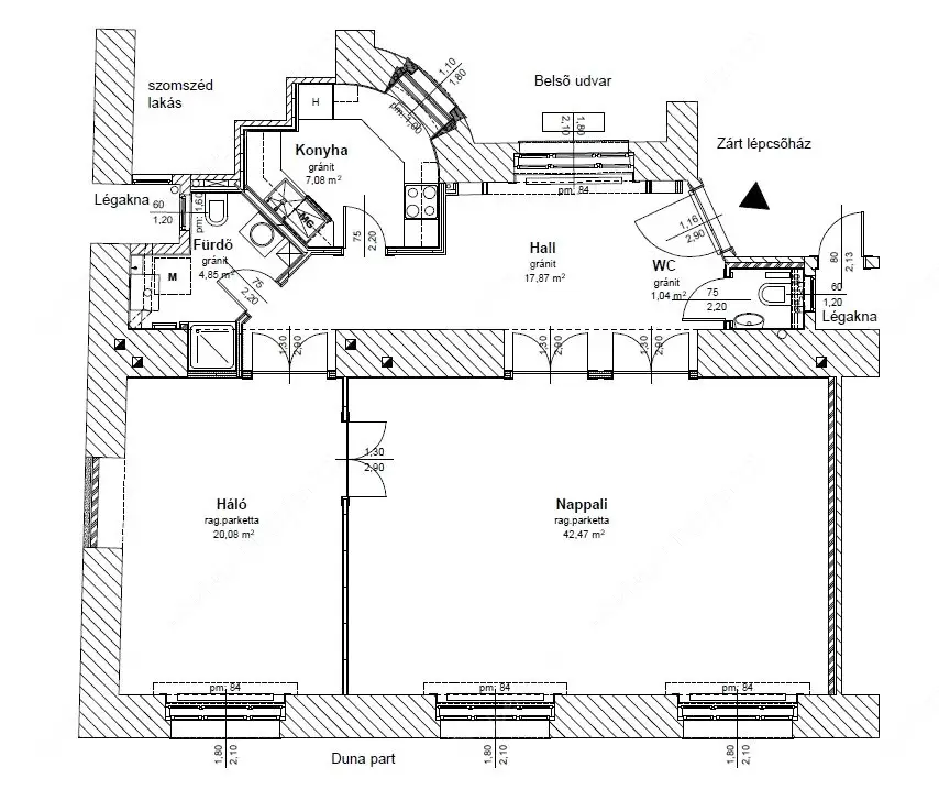
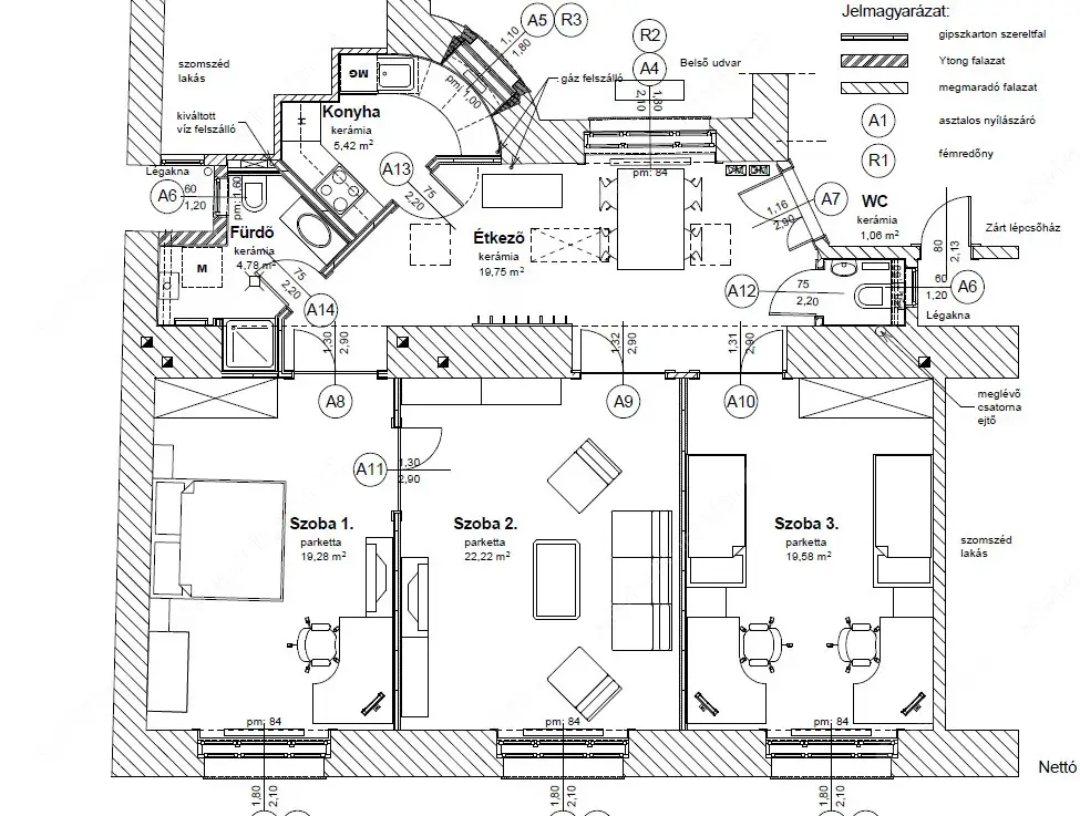
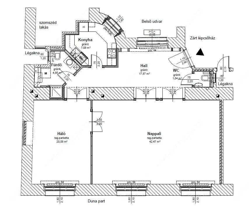
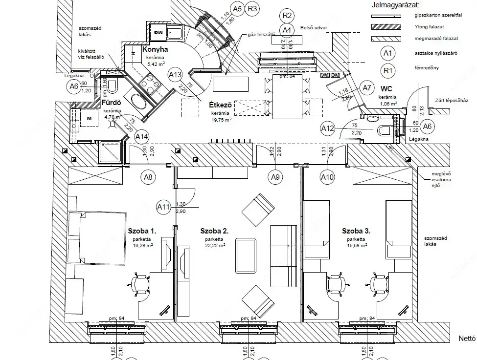
Kiadó a XIII. kerületben az Újpesti rakparton, DUNAI PANORÁMÁVAL rendelkező, igényesen felújított
1. emeleti, 90 m2-es, 3 KÜLÖN BEJÁRATÚ szobás, nagypolgári lakás, igényes Bérlőnek!
Irodának és rendelőnek is alkalmas, kedvező infrastruktúrájából adódóan.
A lakás bérleti díja BÚTOROZATLANUL LETT MEGADVA. A nagyszoba gipszkarton fallal igény szerint megosztható, így lesz 3 szobás. 2 havi kaucióval és 1 hónap bérleti díj megfizetésével átvehető.
KIVÁLÓ LOKÁCIÓ, PANORÁMÁS lakás.
Liftes, jó állapotú ház.
Hangszigetelt ablakok, és motoros fényredőny.
Klimatizált.
Fűtése gázkazán és hűtő-fűtő klíma
Egy fürdő, Wc-vel, és külön vendég Wc
Parkolás az utcán, fizető övezet
A BÉRLÉS jellemzői:
- minimum 1 éves bérleti szerződés
- kis állat nem hozható
- dohányzás nem megengedett
- beköltözhető 2 havi kaució + 1 havi bérleti díj megfizetése után
Amennyiben a hirdetés felkeltette az érdeklődését, keressen bizalommal!
Kereső ügyfeleink számára szolgáltatásaink díjmentesek!