Budapest, XII. kerület Zugliget út, 3 szoba, 65 m2, 340 000 Ft/hó
Budapest, XII. kerület
Részletek
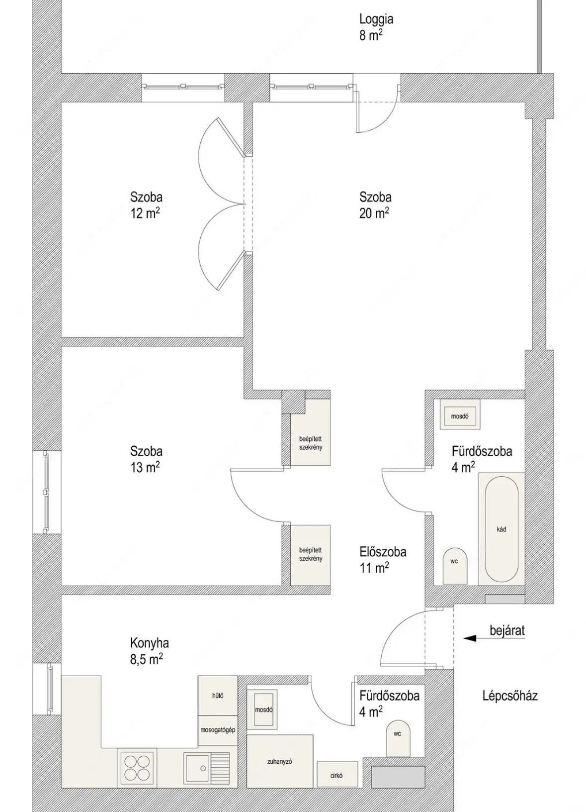
Kiadó a Budapest XII. kerület, Zugligeti úton 3 KÜLÖN NYÍLÓ szobás, MEGEGYEZÉS SZERINT BÚTOROZOTT, GÉPESÍTETT, KISÁLLAT BARÁT 65 NM-ES LAKÁS!
Az ingatlan rendezett, csendes 3 emeletes ház, 2. emeletén található. Lift nincsen.
Fűtéséről gázkazán gondoskodik, HŰTŐ FŰTŐ KLÍMA is van a lakásban.
ERKÉLYES, 8 NM!
A lakás tejes körű felújítása most fejeződött be.
A lakáshoz 3 m2 tároló és a közös tárolóhelyiségben kialakított rész tartozik.
Teljesen gépesített konyha (hűtő, fagyasztó, mosogatógép, mikro, sütő, indukciós főzőlap, páraelszívó)
Két fürdőszoba, egyikben kád, másikban zuhanyzó, mindkettőben wc.
Budagyöngye gyalog 5 perc.
Széll Kálmán tér tömegközlekedéssel 10-15 perc.
2 havi kaucióval és egy havi bérletu díjnak megfelelő összeggel AZONNAL KÖLTÖZHETŐ!