Budapest, XI. kerület Rupphegyi út, 5 szoba, 220 m2, 1 429 000 Ft/hó
Budapest, XI. kerület
Lakás jellemzők: Biciklitároló, Fürdőkád, Gardróbszoba, Kertkapcsolat, Külön WC, Mosogatógép, Mosókonyha, Terasz, Zárható szobaajtó, Zuhanyzó, Biztonsági ajtó, Redőny, Műanyag ablak
Felszereltség: 2 garázs, 2 fürdő, Fürdő ablakkal, Fűtött garázs, Klíma, Nagy terasz, Riasztó
Részletek
Fontosabb tulajdonságok:
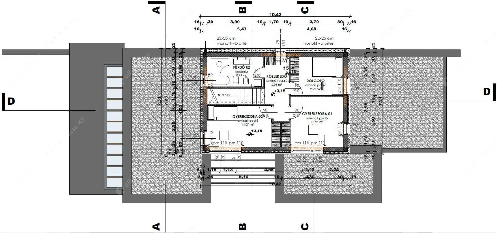
•4 hálószoba
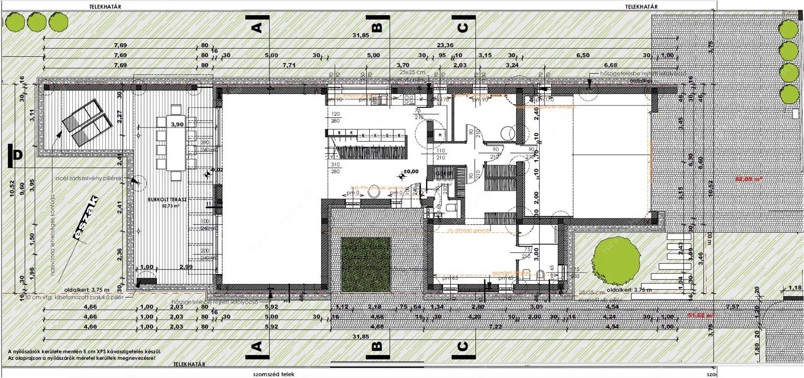
•50 négyzetméteres fedett terasz
•beépített szekrények az egész házban
•hőszivattyús mennyezet hűtés-fűtés
•hővisszanyerős automata szellőztető rendszer
•motoros redőny vagy zsalúzia minden szobában
•beépített házimozi rendszer
•automata öntözőrendszer és robotfűnyíró
•2 autós garázs
•távfelügyeletre bekötött riasztó rendszer
A ház jelenleg részben bútorozott.