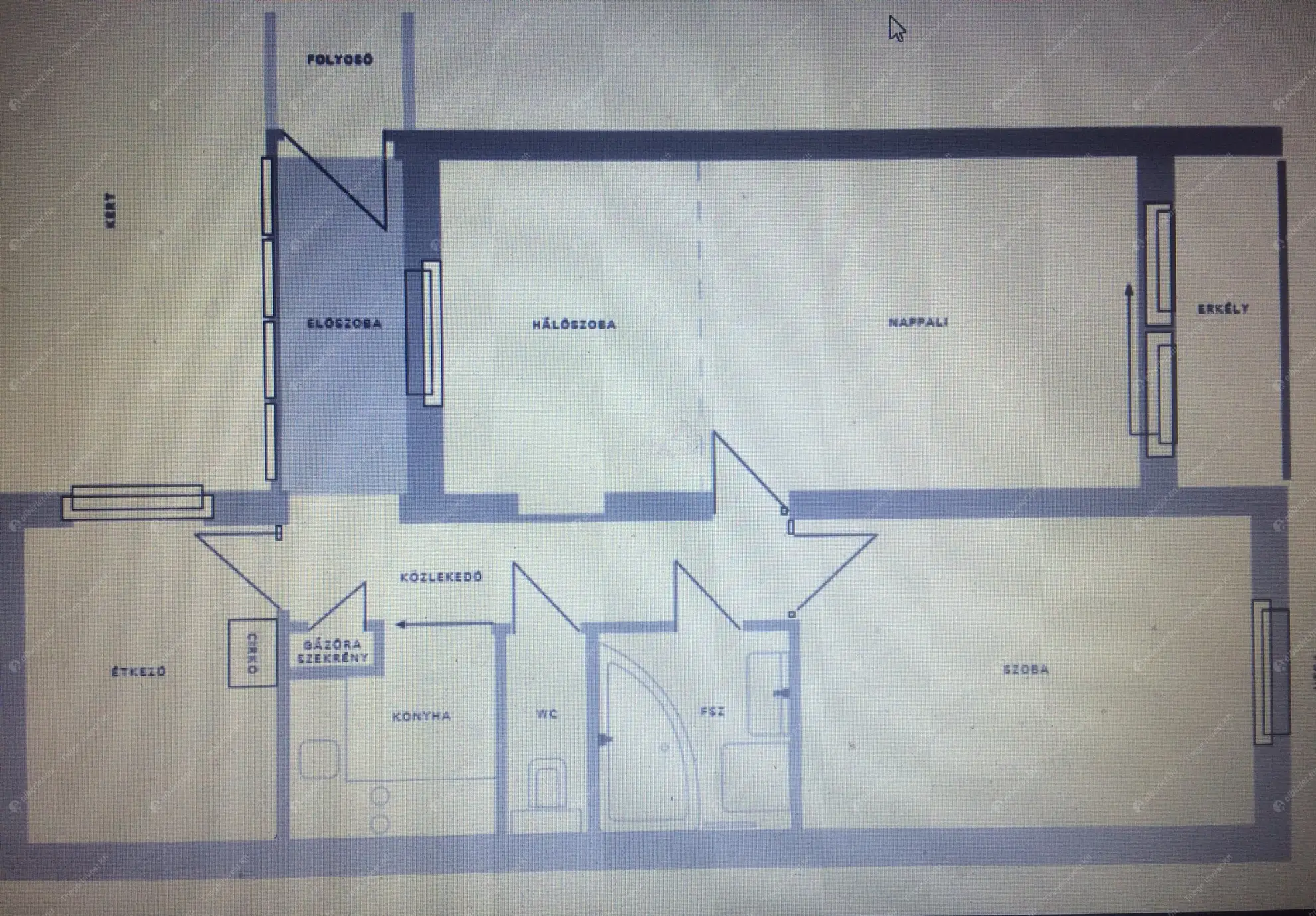
Budapest, VIII. kerület Györrfy István utca, 2 szoba, 70 m2, 270 000 Ft/hó
270 000 Ft/hó
Györrfy István utca
Budapest, VIII. kerület
Budapest, VIII. kerület
2 szoba, 70 m2
Épület típusa
Lakás
Fűtés
Gázkazán
Minimum bérlési idő
Legalább 1 év
Beköltözhető
2025-11-02
Berendezés
Berendezett, gépesített
Emelet
3
Kilátás
Utcai
Min. bérlési idő
Legalább 1 év
Energiatanúsítvány
Nem adott