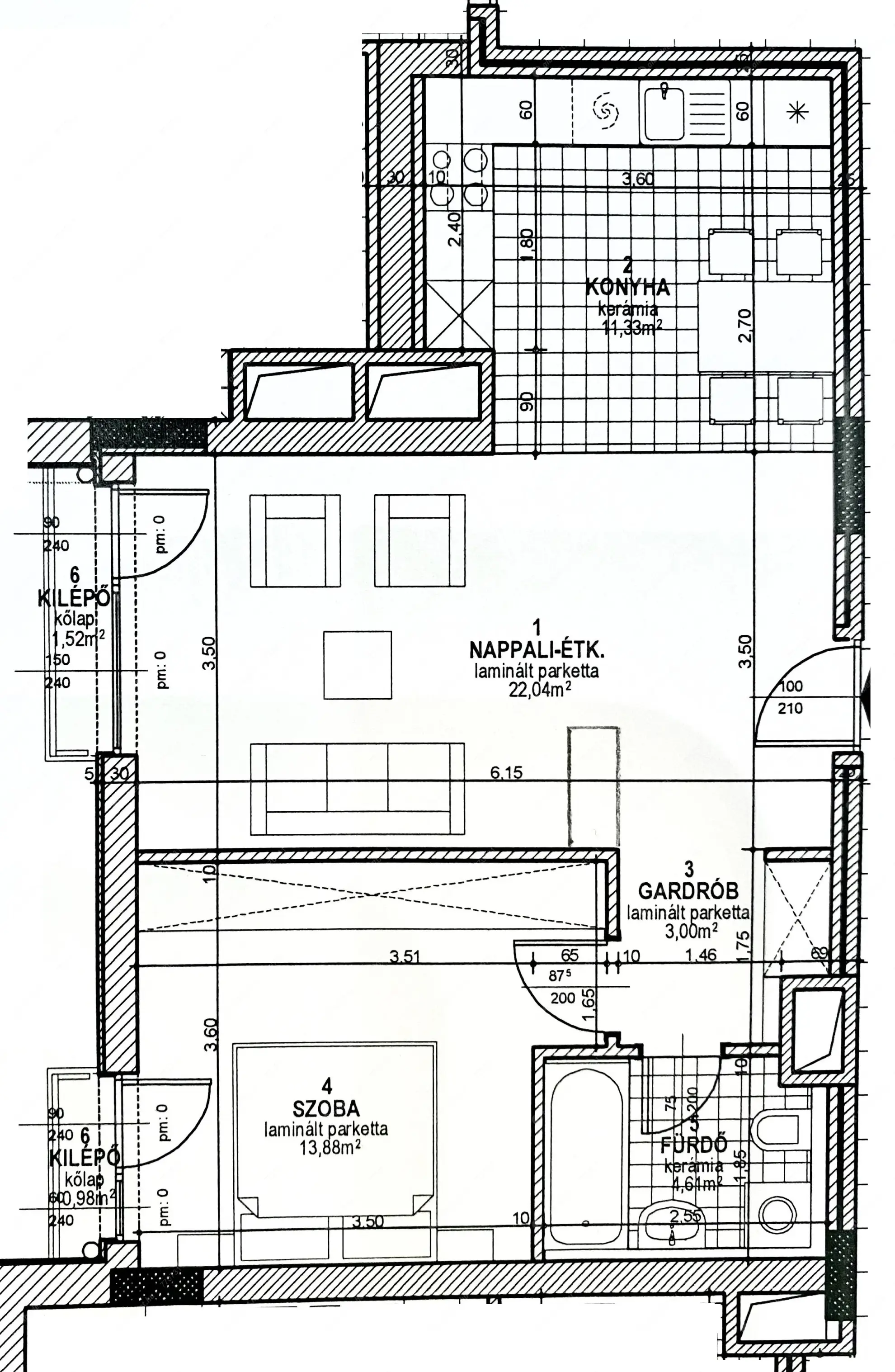
Budapest, IX. kerület Vaskapu utca, 2 szoba, 55 m2, 320 000 Ft/hó
Budapest, IX. kerület
Lakás jellemzők: Fürdőkád, Mosogatógép
Felszereltség: Klíma
Részletek
Hosszú távra kiadó a IX. kerület Vaskapu 10-14 szám alatti 2007-es építésű társasház 5. emeletén nappali + hálószobás, 55nm-es Vaskapu utcára néző bútorozott, gépesített (klíma is) lakás. Január 4-től költözhető.
A rezsi becsült költségében egyedi mérőkkel mért villany van. A vízmennyiség, fűtés és vízmelegítés díja a közös költségben van elszámolva, egyedi mérők alapján.
A lakásban tilos dohányozni, illetve kisállat nem hozható. Az amerikai konyhás nappali egyben van az előszobával, ahonnan a háló és a fürdő nyílik.
Ingatlanosok kérem ne hívjanak.